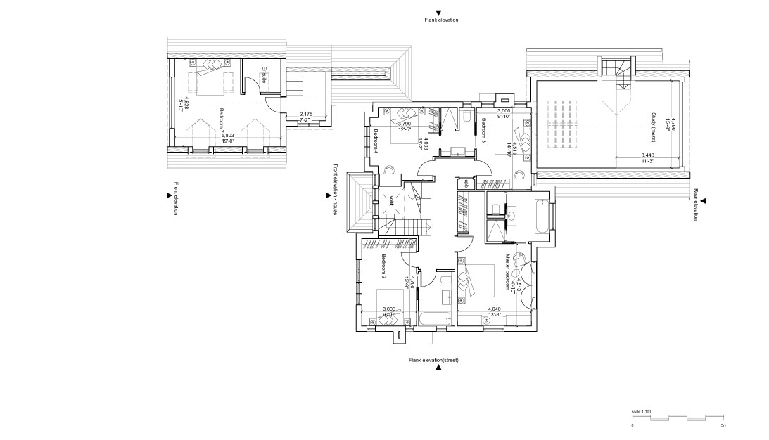
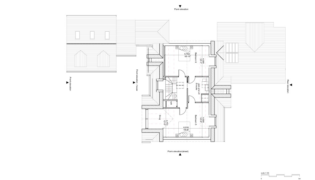
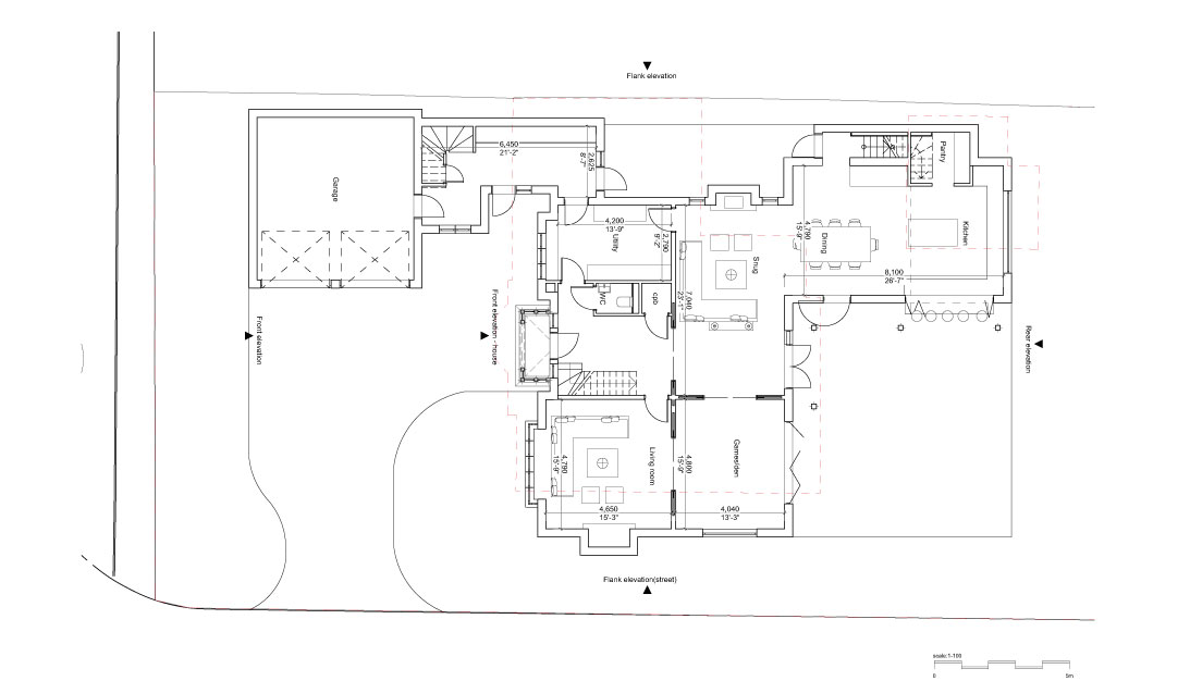
Wilton Road

Beaconsfield

Wilton Road

  • Location:Beaconsfield
  • Status:Planning Approved
  • Client:Private Domestic

shape+ was approached by the client to review and add finesse to the design for a new-build house on the site. The new house needed to suit modern living arrangements, designed in a way that the construction could be phased to make the build affordable and incorporate quirky details to give it the character of an Arts and Crafts style building.