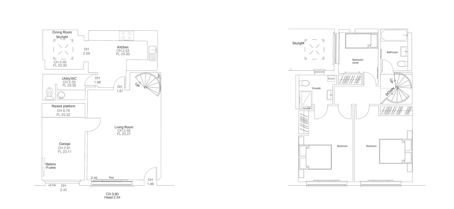
Queen’s Mews is a residential refurbishment project located in Bayswater, London. The property is a terraced house in much need of refurbishment, with dated décor and tired features. It was also suffering from water ingress and associated defects. The client brief was to renovate the interior entirely, rationalising the plan, opening up where possible and bringing the building back to life.