Old Essex House

Barnes

Old Essex House

  • Location:Barnes
  • Status:Complete
  • Client:Private Domestic

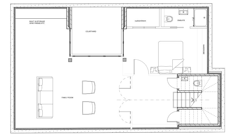
Old Essex House has seen a number of alterations over the years, one being an extensive basement addition. We were asked to relook at the configuration of the space following some opening up works to create a more integrated living space, bedroom and associated facilities.