Mayfair Townhouse

Mayfair

Mayfair Townhouse

  • Location:Mayfair
  • Status:Completed
  • Client:Witheld

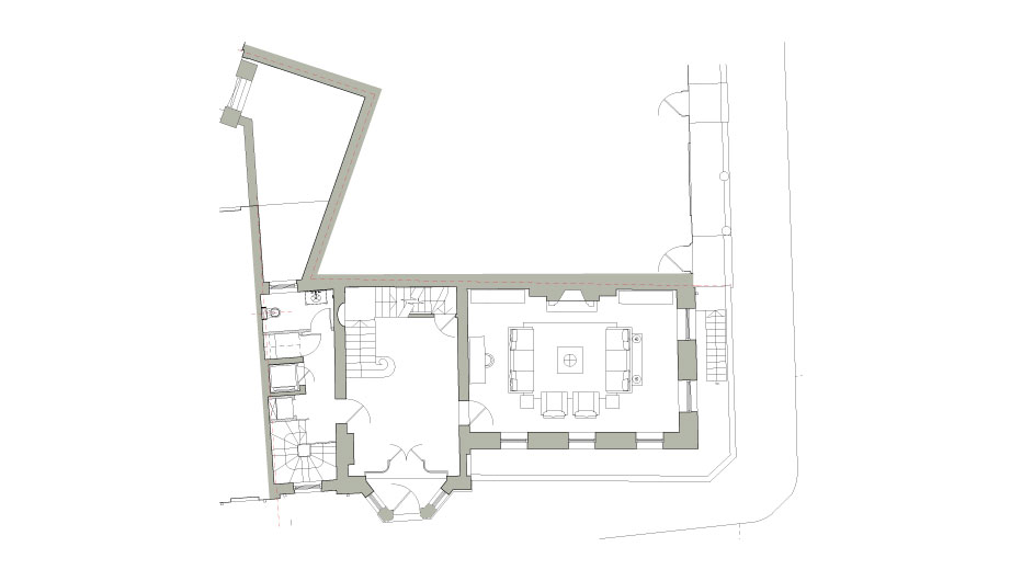
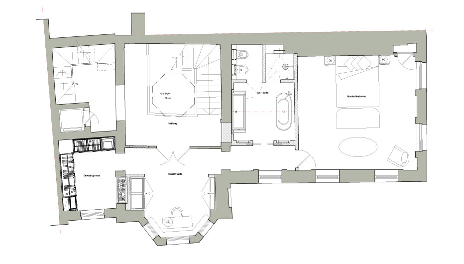
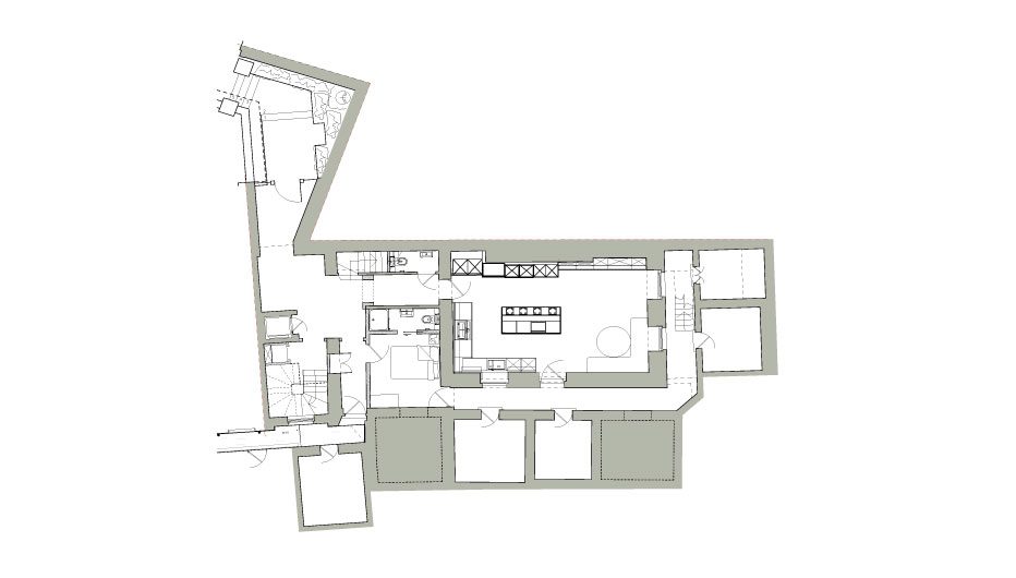
This Grade II Listed Georgian Townhouse is located on a prominent corner in Mayfair. shape+ worked closely with the client, super-prime agents and design team to develop a brief to comprehensively remodel, reservice and refurbish the building. We secured permission for a very valuable roof terrace including an octagonal roof lantern, as well as a contemporary frameless glass private entrance. We carefully designed and detailed this project to celebrate the rich historic detailing of the Listed Building. Sensitive contemporary moments allow natural light and spatial drama, bringing this elegant, understated luxurious property back to life.