High Street

Watford

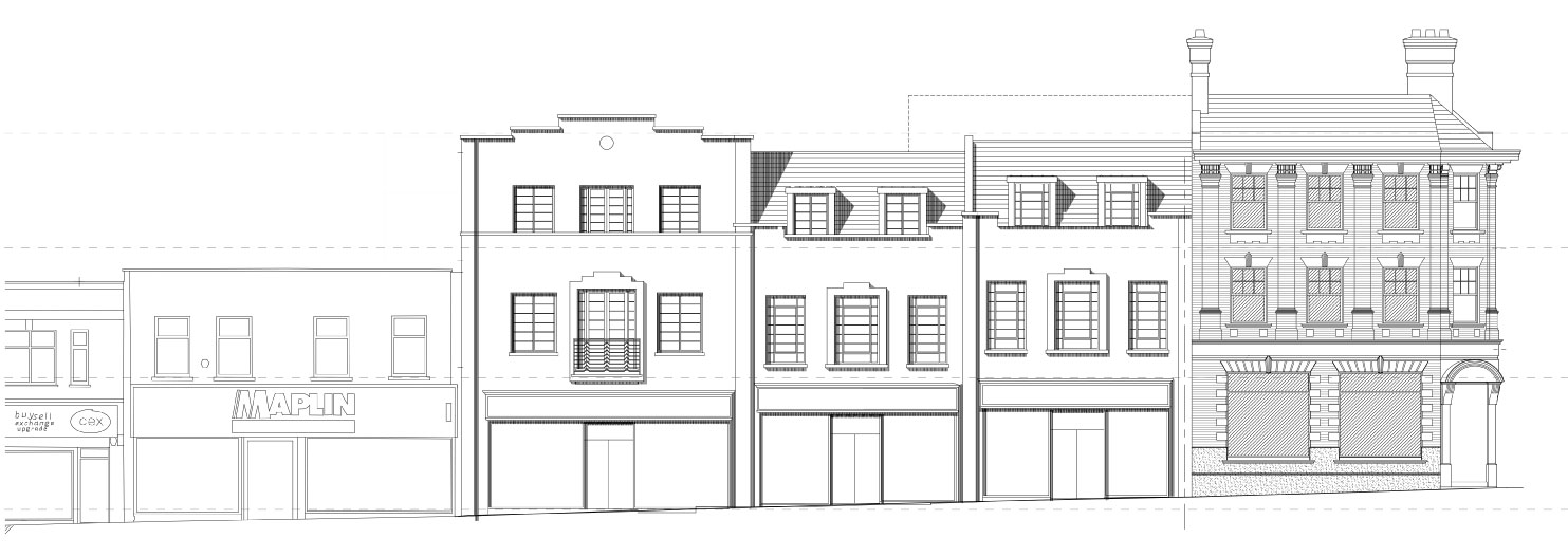
High Street

  • Location:Watford
  • Status:Planning Approved
  • Client:DTZi

This site is located in Watford Town Centre and was redeveloped in 2011-2012. The ground and first floor units were allocated as A3 (restaurant) use. The large first floor unit has been vacant for a number of years so our client, DTZi’s, appointed us to develop a scheme to change the use to residential.

The approved planning scheme provides 8 units, 5 of which will be formed by cutting back the existing roof in line with the second-floor residential terraces.