Castelnau

Barnes

Castelnau

  • Location:Barnes
  • Status:Pre-Construction
  • Client:Private Domestic

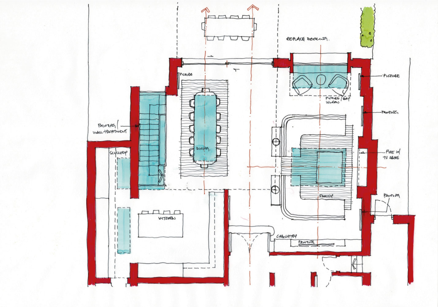
shape+ has secured planning permission for a contemporary rear extension to an elegant Victorian Villa in Barnes. The building is a substantial Victorian detached property within the Castelnau Conservation Area.

shape+ was approached as the existing rear single storey extension does not function as it is required to. The space is dark, due to the depth of the plan, and the spatial arrangement does not meet the client’s needs.

We have secured planning permission for a scheme which adds a relatively modest but well-considered rear extension which includes large, contemporary sliding doors and rooflights. The modest increase in floor area accompanied by internal alterations will dramatically enhance the overall proportions of the space.

We have been working closely with the well-established design team to ensure we achieve a well-designed and resolved project.

We are now shaping the detailed design to be built in early 2020.