Belgrave Square

Belgravia

Belgrave Square

  • Location:Belgravia
  • Status:Planning Approved
  • Client:Private Domestic

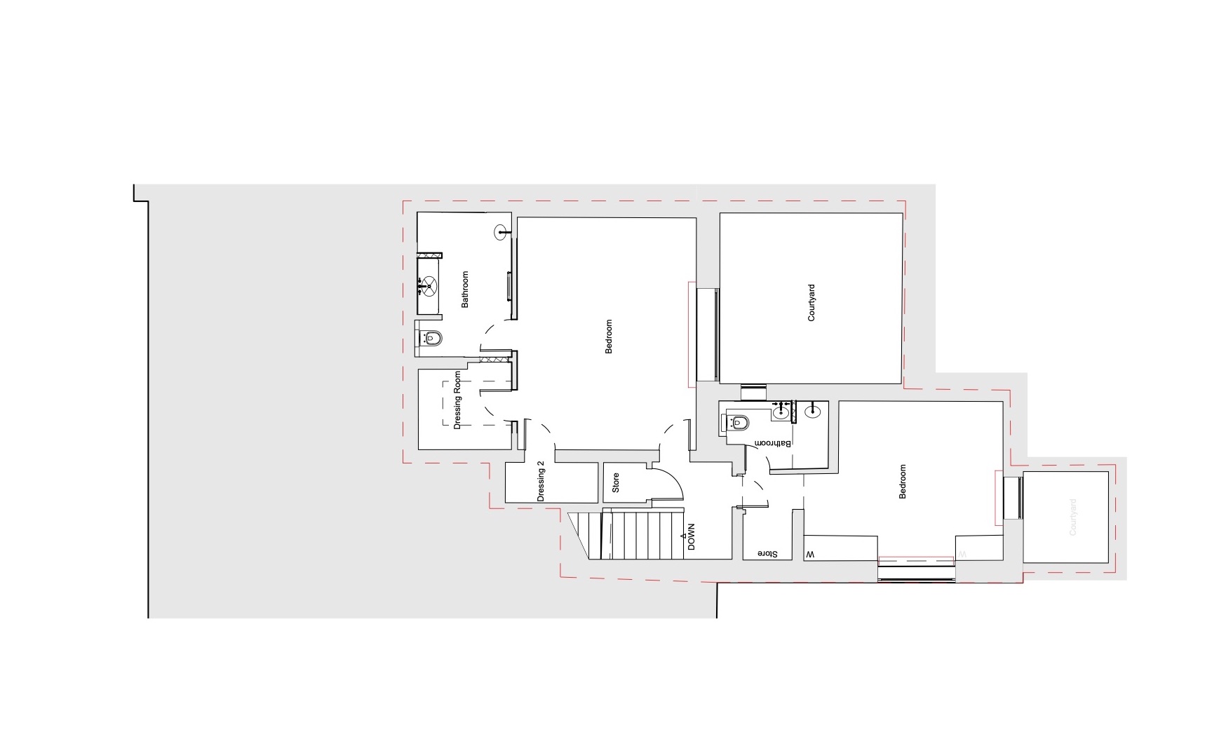
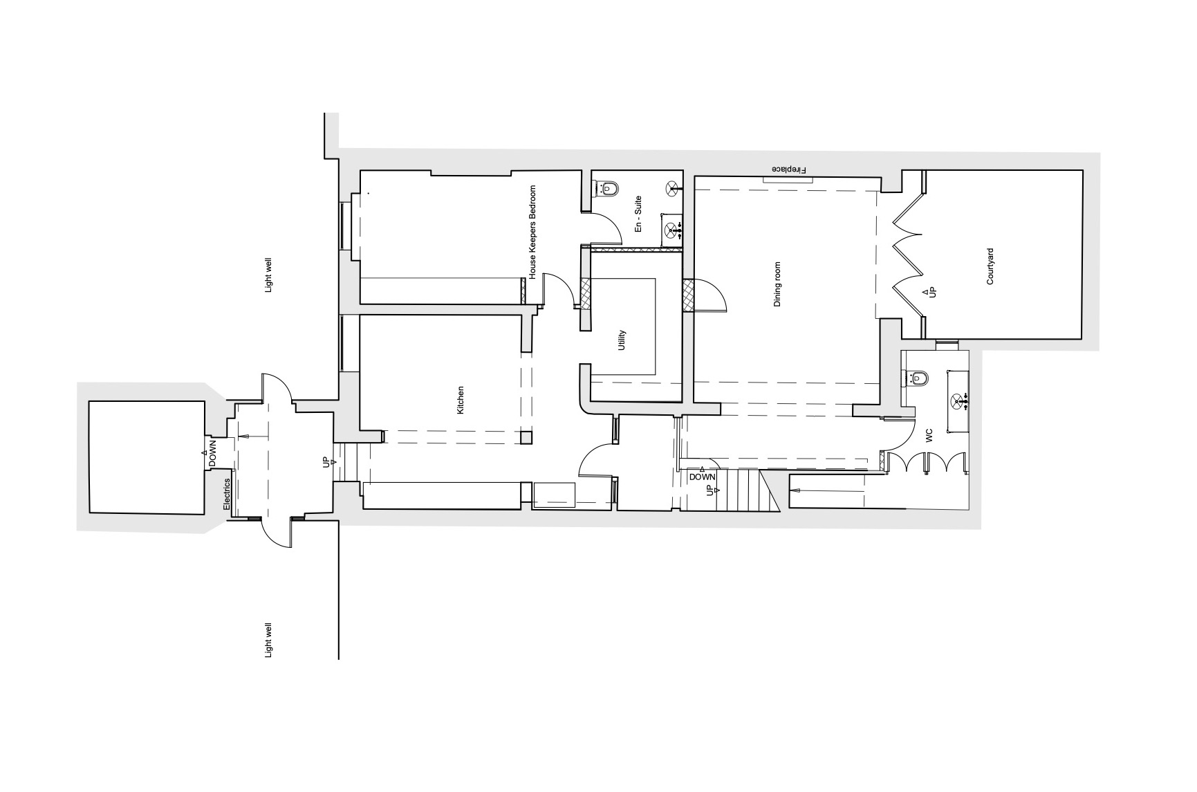
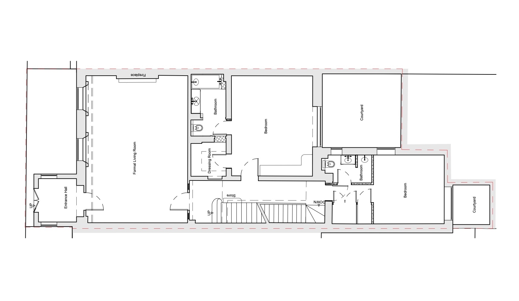
This existing grade II Listed Building is part of a set-piece terrace of grand townhouses leading onto one of the major, historically important, squares of Belgravia.

The client’s brief was to reservice and refurbish the interior spaces, bringing this building up to modern living standards. Working with our services and heritage consultants, we have reorganised the spaces to better serve our client’s needs.

Planning and Listed Building applications for the scheme have been submitted to the Local Authority.